Меню

Проектирование и строительство домов коттеджей в Краснодаре, коммерческих строений, пром проектирование

8 (918) 260-40-33 c 9:30 до 20:00, без выходных
Проекты домов
Двухэтажный дом с гаражом проект 262

Строительство дома под ключ по выгодной цене на вашем участке

от 25 000 / кв.м.
Что входит в стоимость?

Проект элегантного двухэтажного коттеджа в средиземноморском стиле с вместительным гаражом и балконом.

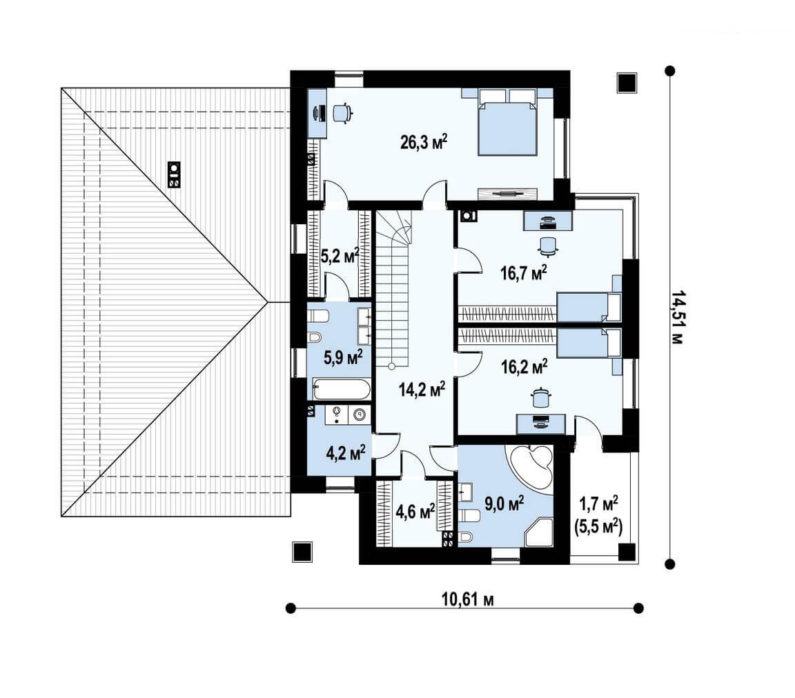
262 m²
1 этаж и мансарда
4 спальни

Варианты исполнения

Дом теплая керамика и фасадный кирпич
Дом теплая керамика и фасадный кирпич
Дом теплая кермика и штукатурка
Дом теплая кермика и штукатурка
Исполнение кирпич бутовый и штукатурка
Исполнение кирпич бутовый и штукатурка
Исполнение из газобетона
Исполнение из газобетона и штукатурки
Общая площадь 281 m²
Площадь застройки 272 m²
Площадь кровли 301 m²
Угол наклона кровли 25° / 10°
Высота дома 9 m
Закажите строительство
частного дома
Индвидуальные решения
в строительстве
Монолитные лестницы
фундаменты

Видео

Галерея

Ход строительства

Описание

 
Строительство частных домов и коттеджей, отделка помещения

Комфортная гостиная для большой семьи

Проводить приятно вечера в компании семьи и друзей позволит вместительная гостиная данного дома площадью 262 м2. Классический или модерн стиль премиум класса поможет создать элегантную и уютную атмосферу, которая будет приятно согревать своим качеством и надежностью. Общий стиль данного интерьера - классическая элегантность в сочетании с современной практичностью. Применение в качестве напольного покрытия паркета из массива дерева, мягкие кремовые тона в отделке интерьера создадут помещение, в котором будет комфортно жить, и которое украсит разворот любого издания.

Отдельно стоит отметить высоту потолков - такое архитектурное решение позволит увеличить пространство, создать легкость восприятия и это позволит сохранять больше воздуха в помещении. Отдельно размещенные лестницы тоже добавят дополнительного комфорта и удобства.

Ремонт и отделка Краснодар, примеры квартир и домов ремонты

Кухня + столовая = проверенная классика

Кухня в данном проекте представляет собой помещение свободной планировки, которое визуально разделено на гостиную, рабочую и столовую зоны. Пространство столовой связано с зоной кухни, также просматривается часть гостиной. Открытое пространство в помещении создает ощущение простора и еще больше объединяет гостей этого дома.В такой кухне приятно готовить, встречать гостей и проводить вечеринки.

Эргономика помещения позволяет наиболее удобно разместить кухонный гарнитур и обеденную мебель, создавая наиболее комфортное пространство в гостиной.
 

Строительство частных домов Краснодар, проектирование домов

Гостиная в современном стиле с элементами модерн

Элегантный и традиционный дизайн интерьера комнат сочетается в жилых помещениях проекта данного дома площадью 262 метров квадратных. Современные тенденции дизайна позволяют создать гармоничное пространство, которое принесет радость и комфорт жильцам. Акцентной точкой становится камин, за которым уютно проводить вечера в кругу семьи. Дизайнер интерьера постарался совместить современный стиль и незабываемую классику. Эргономичные системы хранения позволят расположить вещи, и тем самым создать дополнительную элегантность Это могут быть статуэтки, книги, сувениры. Такую жилую комнату можно превратить в детскую или кабинет. Вообразить такой дом возможно, построить также на собственном участке.

Проектирование данного коттеджа предусматривает внесение индивидуальных изменений в планировку. Дизайнеры предложат вам мебелирование согласно вашим пожеланиям и предпочтениям.

Строительство частных домов Краснодар, заказать проект дома комфорт

Большая кухонная зона с большим островом 

Кухня данного проекта разработана с максимальным удобством. Стены имеют панорамное остекление, которое позволяет максимально задействовать естественное освещение, предоставляя владельцам возможность максимального обозрения рабочей зоны, и в то же время создавая ощущение уюта и простора.

Удобное расположение бытовой техники и зоны хранения продуктов превратит процесс готовки в удовольствие. Продуманный дизайн интерьера кухни - это залог вкусных блюд и быстроты приготовления. Обращая внимание на детали, наши дизайнеры вкладывают идею, которая передается в элементах интерьера проекта дома. Напоминаем, интерьер может быть иным, Заказчик определяет его самостоятельно, или обращаясь к нашим 3d визуализаторам.

Ремонт и отделка помещений Краснодар, строительные работы

Современная двухэтажная вилла площадью 262 м2 станет украшением любого участка. Владельцы премиальных автомобилей оценят гараж на два места. Красивая и вместительная терраса возле дома позволит разместить по желанию как сад, так и бассейн.

ПРИРОДА У ВАШЕГО ПОРОГА

Проект классического двухэтажного коттеджа с просторным гаражом станет отличным выбором для любой семьи, имеющей несколько автомобилей и любящей принимать гостей. Такой дом обеспечит комфортный образ жизни и удобство. Загородный коттедж, который размещен на участке, позволит наслаждаться ландшафтным дизайном и прекрасными вечерами проживания в пригороде. Просторная уютная терраса, элегантный фасад превратит дом в достойный образец ликвидной недвижимости. Проект данного дома выполнен в средиземноморском стиле. Такое архитектурное решение станет действительно индивидуальным и запомнится многим в городе.

Проектирование домов в Краснодаре, строим дома под заказ
 
 
Удачное
расположение
центральное
газоснабжение
Отделка помещений, строительство домов Краснодар
Качественная
предчистовая отделка

Цена

Строительство домов из кирпича, частное строительство

Цена строительства

от 25 000 / кв.м.

Дом теплая керамика и фасадный кирпич от 25 000 / кв.м.
Дом теплая кермика и штукатурка от 24 500 / кв.м.
Исполнение кирпич бутовый и штукатурка от 24 000 / кв.м.
Исполнение из газобетона от 23 500 / кв.м.
Исполнение из газобетона и штукатурки от 23 000 / кв.м.
Хочу такой дом
Видео строительства

Видео строительства

РАССЧИТАТЬ

ПОЗВОНИТЬ

Проектирование, визуализация и моделирование объектов Копирование материалов, право пользование Согласно ФЗ правил пользования материала KubTop.ru, настоящим сообщаем копирование запрещено У Вас другой вопрос? Вы ознакомлены, закрыть окно, или обратиться к нам за консультацией Ознакомлен Контакты