Проект частного дома 204 кв.м.
Современный комфортабельный проект дома 204м2 с мансардой и гаражом
| Общая площадь | 204 m² |
|---|---|
| Площадь застройки | 196 m² |
| Площадь кровли | 208 m² |
| Угол наклона кровли | 37° |
|---|---|
| Высота дома | 8 m |
доступной цене
к строительству
своего дома
Галерея
Описание
Американский стиль интерьера в гостиной
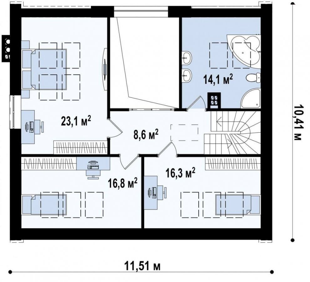
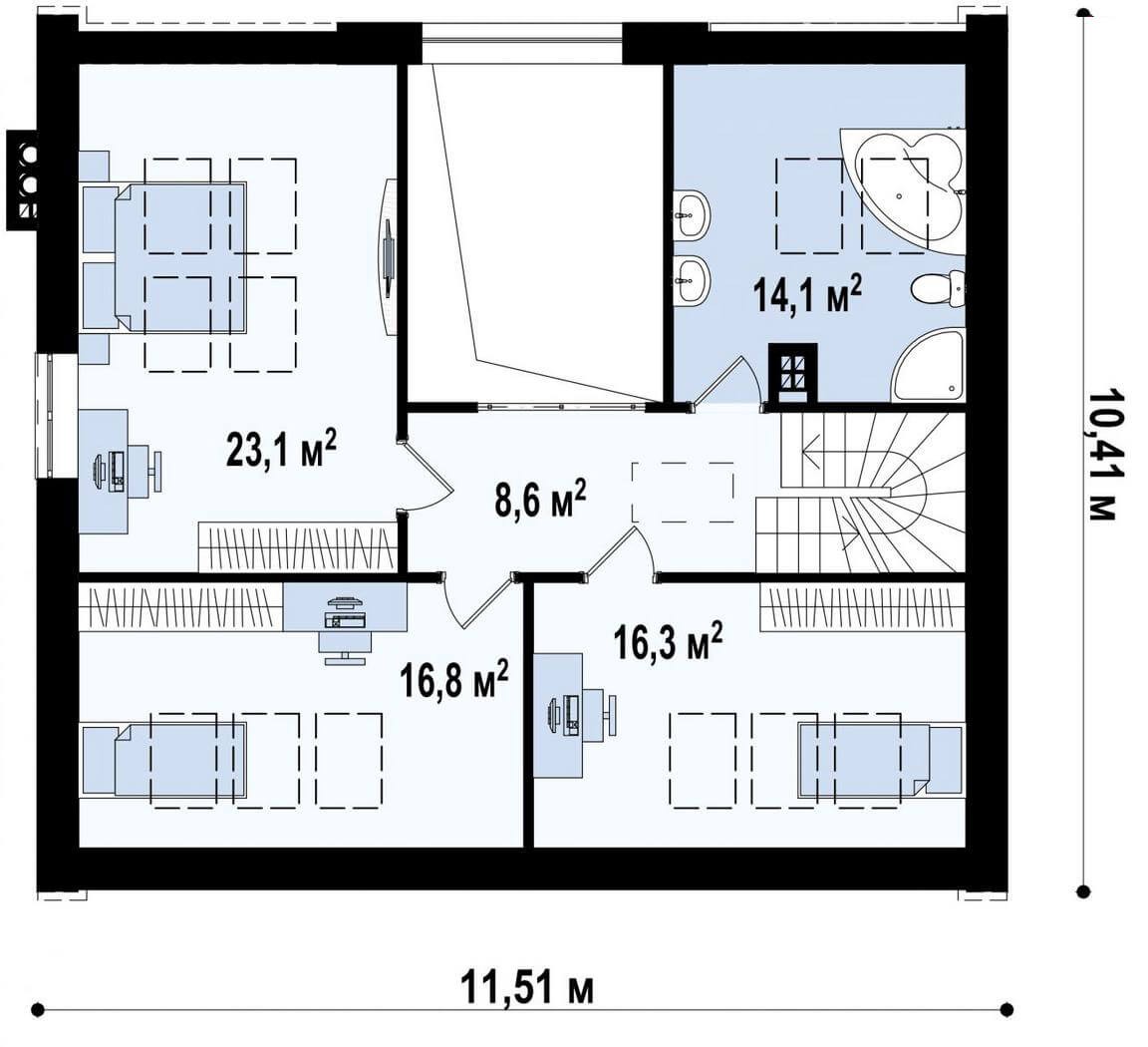
В проекте дома площадью 204 кв метра инженеры реализовали такие параметры, как практичность, функциональность и стиль. Комфортная расстановка мебели, не загромождающая полезное пространство, позволит создать комфортную зону для отдыха, досуга и встреч гостей. При детальном изучении плана дома можно также отметить этот принцип практичности.
Визуализация дизайна в кантри стиле - кухня
Угловая кухня представляет собой традиционный проект дизайна интерьера. Угловое расположение мебельного гарнитура обеспечивает универсальность планировки, позволяя максимально использовать пространство для готовки, хранения продуктов и утвари, для приема пищи и сбора гостей. Дизайнеры проекта рекомендуют выбрать кухонный гарнитур на заказ.
Дизайнерская спальня для молодой семьи
Преимущество данной спальни для молодых членов семьи - это современный дизайн, в проекте которого предусмотрено сочетание смелых пастельных тонов. Дизайнеры руководствовались принципом максимального использования свободного пространства, учитывали эргономику помещения. В данном проекте предпочтение отдано простым формам, отдельным ярким акцентным точкам. В таком помещении приятно заниматься, учиться и отдыхать.
Кантри стиль в спальни для гостей
Мастер-рум для представителей старшего поколения также основывается на принципах лаконичности и натуральности. Акцентной деталью спальни в проекте данного дома является кровать, угловое расположение систем хранения максимально высвобождает площадь. Камин помогает создать атмосферу уюта и комфорта, причем для компактных планировочных решений соблюдается принцип максимального высвобождения пространства. Сдержанная контрастная гамма, использование натурального дерева позволяют создать стильный, элегантный интерьер.

ОТДЫХ И КОМФОРТ ВАШЕГО ЖИЛЬЯ
Проект кирпичного дома 204 м2 предполагает создание стильного, современного жилья, который проще и удобнее воплотить в жизнь, чем например многоэтажные виллы. В качестве строительства и использованию материалов, продуманных планировок, современной мебели и техники - это отличные планировки и решения, которые подойдут для любой семьи. По вопросу заказа такого дома, можно обратиться к нам.
участок для вас
газоснабжение
предчистовая отделка
Цена
Цена возведения дома
от 25 000 ₽ / кв.м.


