Меню

Проектирование и строительство домов коттеджей в Краснодаре, коммерческих строений, пром проектирование

8 (918) 260-40-33 c 9:30 до 20:00, без выходных
Проекты домов
Проект 155 кв м двухэтажный коттедж

Проектирование и строительство частного дома с двумя этажами и высокими окнами

от 25 000 / кв.м.
Что входит в стоимость?

Современный проект загородного двухэтажного коттеджа 155 м2 в греческом стиле и современном исполнении.

155 м2
2 этажа
1 спальня

Варианты исполнения

Дом теплая керамика и фасадный кирпич
Дом теплая керамика и фасадный кирпич
Дом теплая кермика и штукатурка
Дом теплая кермика и штукатурка
Исполнение кирпич бутовый и штукатурка
Исполнение кирпич бутовый и штукатурка
Исполнение из газобетона
Исполнение из газобетона и штукатурки
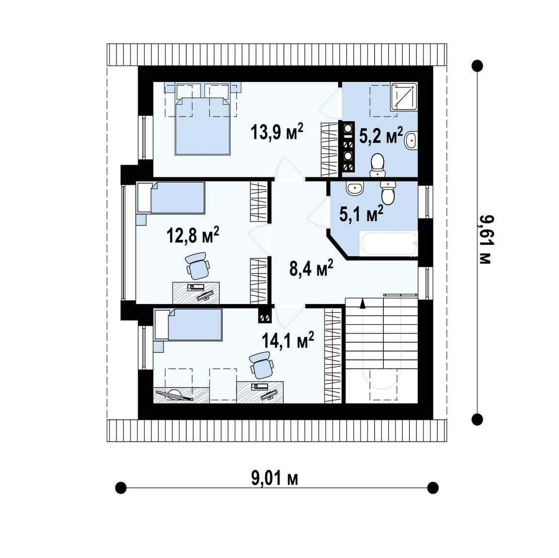
Общая площадь 155 м2
Площадь застройки 45 м2
Жилая площадь 59 м2
Ширина участка 14 - 18 м
Длина участка 15 м - 30 м
Внешняя отделка стен Кирпич клинкерный, декорированная лиственница
Высота первого этажа 2.75 м
Высота второго этажа 2.80-3.00 м
Кровля Оцинкованный гофролист, гибкая черепица
Окна Пластик, энергосберегающие стекло пакеты
Проектирование и возведение коттеджей Краснодар под ключ
Закажите
проект и документацию
Построить двухэтажный дом Краснодар под ключ
Проектирование
визуализация
Построить недорогой двухэтажный дом в Краснодаре с коммуникациями
Озеленение
двора и парка

Галерея

Ход строительства

Описание

 
Заказать строительство частного дома в Краснодаре под ключ

Комфортабельная спальня в небольшом доме

Спальная комната отделана с применением стиля рустик, большое количество дерева делает комнату более теплой. Практичная кровать-диван и стулья из одного гарнитура позволяют превратить спальню в уютную гостиную или кабинет, тем самым создавая многофункциональное помещение. Использование цветочных мотивов и ярких акцентных деталей сделает помещение по настоящему солнечным.

Заказать строительство кирпичного дома Краснодар с проектом

Гостиная с кухней правильный выбор

Гостиная со столовой зоной также представляет собой практичное и удобное решение, объединяющее зону отдыха и зону приема пищи. Таким образом, домочадцы смогут принимать больше участия в повседневных ритуалах, например, смотреть вместе ТВ и одновременно готовить. Отделка помещения также выполнена в теплых тонах. Дизайнеры предложат вам разработать проект под ключ, подобрать отделку и гарнитур, исходя из ваших пожеланий.

Дизайнерская спальная мебель

Спальня для взрослого или ребенка воплощает в себя все принципы уюта и комфорта, контрастность отделки стен придает большую натуральность помещению, а практичное размещение легкой, воздушной мебели, использование встроенных гарнитуров позволит не утяжелить помещение и сохранить его функциональность.

Заказать строительство домов в Краснодаре с коммуникациями

Детская комната для двоих мальчишек

В детской комнате также взят за основу принцип практичности. Здесь для отделки рекомендуются тематические обои, в зависимости от пола ребенка, использование двухьярусной кровати, и удобных шкафов для хранения. Дизайнеры помогут вам разработать проект комнаты, которая будет расти вместе с ребенком.

Строительство двухэтажного кирпичного дома в Краснодаре с проектом

Дом сдается с огороженной территорией, подключенными коммуникациями, предчистовой отделкой. Остается только сделать ремонт на свой вкус и отмечать новоселье.

Двухэтажный дома из кирпича

В данном проекте двухэтажного коттеджа 155м2 за основу были взяты принципы практичности, функциональности и легкости, которая достигается за счет использования светлых материалов в отделке экстерьера и интерьера.

Строительство двухэтажных домов под ключ Краснодар с коммуникациями
 
 
Строительство двухэтажного жилого дома в Краснодаре под ключ
Развитая
инфраструктура
Строительство двухэтажного дома Краснодар с проектом
центральное
газоснабжение
Строительство домов из кирпича Краснодар под ключ
В черте города

Цена

Строительство кирпичных домов и коттеджей в Краснодаре с проектом

Цена дома с мансардой

от 25 000 / кв.м.

Дом теплая керамика и фасадный кирпич от 25 000 / кв.м.
Дом теплая кермика и штукатурка от 24 500 / кв.м.
Исполнение кирпич бутовый и штукатурка от 24 000 / кв.м.
Исполнение из газобетона от 23 500 / кв.м.
Исполнение из газобетона и штукатурки от 23 000 / кв.м.
Хочу такой дом
Видео строительства

Видео строительства

ПРОЕКТЫ

Другие проекты

Смотреть все

РАССЧИТАТЬ

ПОЗВОНИТЬ

Проектирование, визуализация и моделирование объектов Копирование материалов, право пользование Согласно ФЗ правил пользования материала KubTop.ru, настоящим сообщаем копирование запрещено У Вас другой вопрос? Вы ознакомлены, закрыть окно, или обратиться к нам за консультацией Ознакомлен Контакты