Строительство двухэтажного дома с евроремонтом под ключ
Проект двухэтажного дома 246 м2 в классическом стиле, а те, кто не знал, в викторианском стиле с практичными планировками, элегантным фасадом и оригинальным дизайном интерьера
| Общая площадь | 260 m² |
|---|---|
| Площадь застройки | 366 m² |
| Площадь кровли | 471 m² |
| Угол наклона кровли | 40° |
|---|---|
| Высота дома | 8 m |
в строительстве
3д интерьеры
каждого объекта
Видео
Описание
Просторная гостиная и компактная кухня
Просторная гостиная, совмещенная с обеденной частью и кухней, позволила создать многофункциональное пространство, совмещающее в себе все самые необходимые условия для отдыха в комнате. Применение в интерьере современной мебели компактного вида позволяет создать дополнительный простор и увеличить доступное для отдыха пространство. Качественная отделка интерьера создает ощущение нахождения в доме европейского класса. Но самое главное, возможно реализовать, построить такой дом, проект которого представлен нами для строительства на вашем участке. Кстати, с выбором участка мы так же поможем Вам
Правильно спроектированное пространство комнат, предусмотренный в плане коттеджа камин, превращают гостиную в комнату, в которой хочется проводить время со всей семьей и друзьями. Спроектированная планировка позволяет превратить помещение не только в гостиную, а например, также в кабинет или столовую.. Отдельно размещенная лестница на второй этаж создаст дополнительное условие комфорта жильцов и не уменьшит полезную площадь помещения.
Стильный дизайн интерьера кухни
Интересным дизайнерским и архитектурным решением стала просторная кухня с панорамным остеклением. Такой ход дизайнеров и проектировщиков в проекте данного двухэтажного дома позволили превратить помещение в комфортную и практичную обеденную зону - приятное место, где хочется творить кулинарные шедевры. Грамотное расположение кухонных шкафов, встроенной мебели создает удобную зону приготовления и принятия пищи. Как известно, хозяйки больше всего ценят практичность, когда все необходимое находится под рукой.
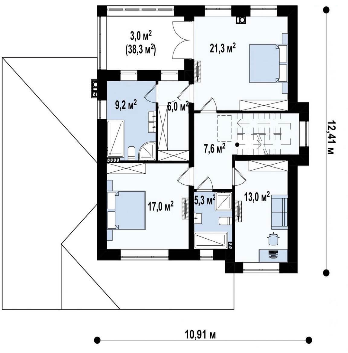
Элегантная барная стойка, расположенная возле окна, наполняет комнату уютом , а процесс принятия пищи станет намного приятней и принесет больше удовольствия. При разработке проекта коттеджа учитывается эргономика помещения, возможность комфортно расположить кухонные шкафы и максимально использовать пространство в 9,2 м2. Готовый проект дома вы можете в дальнейшем применять в строительстве на вашем земельном участке.
Дизайнерская гостиная мебель в интерьере
Уютное и продуманное до мелочей помещение разработано в лучших традициях современного дизайна, и может стать отличной зоной отдыха или работы для ребенка или взрослого, в случае, если данное помещение будет переоборудовано под детскую или кабинет.
Красивая спальня в частном доме
Дизайн интерьера спальни, направлен на создание модного стиля “хюгге”, дарящего ощущение уюта, комфорта и простора. Спальная комната имеет распределение, в котором грамотно расположены зона отдыха и зона хранения, что позволит владельцам дома спокойно расслабиться и заснуть или проводить вечера за чтением книги,а может и за работой за ноутбуком.
Дизайн интерьера спальни выполнен в практичных, теплых тонах, что в свою очередь добавляет уют и теплоту. Продуманная планировка позволяет осуществить мебелирование так, чтобы максимально использовать пространство помещения. Например, вы можете отдать предпочтение встроенным шкафам или шкафам-купе.

Элегантный проект двухэтажного дома площадью дома 246 м2 выполнен в современном стиле, с учетом классических традиций. Для автовладельцев предусмотрен гараж, на втором этаже можно оборудовать спальные зоны, гостиные или кабинеты, проект также предполагает строительство балкона.
ПРИРОДА У ВАШЕГО ПОРОГА
Проект двухэтажного дома площадью 246 м2 представляет собой современное здание, построенное с применением всех качественных технологий и строительных материалов. Построенный дом по данному проекту станет украшением любого земельного участка и района. Сочетание дизайнерских тенденций, практичности позволит создать лучшее здание для жизни. Просторная терраса на первом этаже, удобный гараж на один автомобиль позволяют максимально рационально использовать пространство двора. Строительство данного дома поможет вам воплотить мечту об идеальном жилье.
расположение
газоснабжение
предчистовая отделка
Цена
Цена построить дом
от 25 000 ₽ / кв.м.


