Меню

Проектирование и строительство домов коттеджей в Краснодаре, коммерческих строений, пром проектирование

8 (918) 260-40-33 c 9:30 до 20:00, без выходных
Проекты домов
Проект 477 кв м элитный коттедж

Заказать элитный коттедж построить под ключ цены и отзывы

от 25 000 / кв.м.
Что входит в стоимость?

Проект современной вместительной виллы в средиземноморском стиле, в наличии гараж на два авто, просторный балкон и терраса.

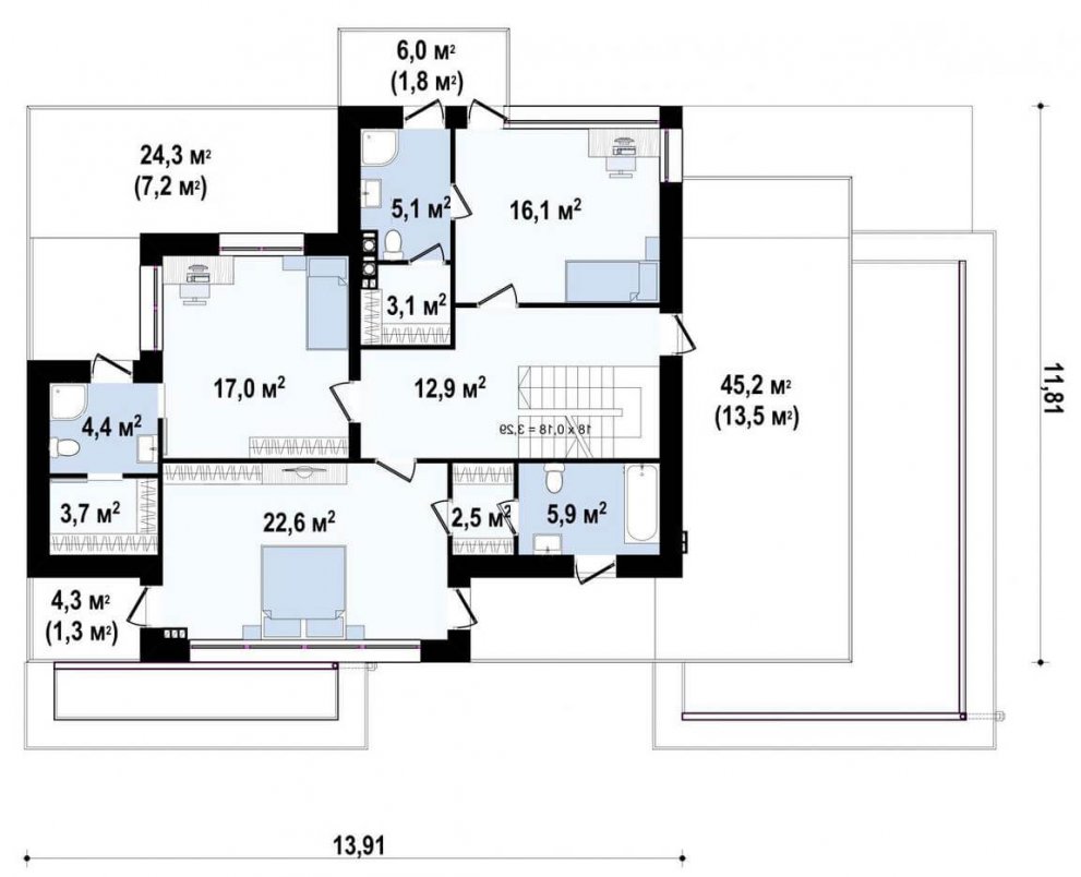
477 m²
1 этаж
1 спальня

Варианты исполнения

Дом теплая керамика и фасадный кирпич
Дом теплая керамика и фасадный кирпич
Дом теплая кермика и штукатурка
Дом теплая кермика и штукатурка
Исполнение кирпич бутовый и штукатурка
Исполнение кирпич бутовый и штукатурка
Исполнение из газобетона
Исполнение из газобетона и штукатурки
Общая площадь 477 m²
Площадь дома 453 m²
Площадь застройки 371 m²
Строительный объем 1 520 m²
угол наклона кровли 6° / 3°
Готовые проекты домов для строительства Краснодар с коммуникациями
Кирпичные дома
строительство
Дома строительство из кирпича Краснодар на участке с коммуникациями
Выгодные условия
сотрудничества
Проектирование и строительство дома в Краснодаре с проектом
Доступные цена на
строительство

Видео

Дома строительство из кирпича Краснодар на участке с коммуникациями

Ход строительства

Описание

 
Заказать проект и строительство дома в Краснодаре с проектом

Огромная гостиная в элитном доме

Просторная гостиная площадью 37,8 м2 позволит проводить досуг в компании близких и друзей. Мы предлагаем стиль лофт, создающий ощущение уюта и комфорта, которая будет приятно согревать своей атмосферой тепла, а надежность интерьера будет радовать вас долгие годы. Стиль лофт также создает легкость восприятия, а открытое пространство зрительно увеличивает существующий метраж помещения.

Строительство дома по своему проекту Краснодар на участке с коммуникациями

Гостиная комфортный отдых

Оригинальный и уютный дизайн современного стиля лофт позволяет создать комфортное пространство, в котором будет удобно находиться жильцам. Дизайнеры предлагают совместить городской стиль лофт, панорамное остекление и удобную современную мебель, тем самым создавая стильное и одновременно практичное пространство. Натуральные материалы подчеркивают близость к природе и добавляют естественных ноток в интерьер.

Двухэтажные дома строительство в Краснодаре под ключ цены

Стильный современный дизайн интерьера

В проекте данной виллы кухня представляет собой вместительное помещение свободной планировки, которое делится на гостиную, рабочую и столовую зоны. Открытое пространство позволяет домочадцам проводить больше времени вместе, создавая ощущение простора, позволяя готовить, приятно проводить время вместе за трапезой, отдыхом и работой.

Одноэтажные дома строительство Краснодар под ключ

Спальная комната - самая важная в доме

Дизайн интерьера спальни воплощает в себе все тенденции стиля лофт, объединяя городские тренды с практичной планировкой. Встроенная мебель позволяет рационально использовать пространство, а владельцы интерьера спальни могут комфортно проводить время за отдыхом, работой или учебой.

Сколько будет построить дома из кирпича в Краснодаре стоимость под ключ

Дом сдается с огороженной территорией, подключенными коммуникациями, предчистовой отделкой. Остается только сделать ремонт на свой вкус и отмечать новоселье.

Коттедж для комфорта жизни

Вместительная двухэтажная вилла площадью 477 м2 станет достойным украшением любого загородного участка. Владельцам транспортных средств придется по вкусу автомобиль на два места.

Готовые дома до 150 кв.м. построенные Краснодар под ключ цены
 
 
Заказать дом из кирпича до 100 метров в Краснодаре с проектом
Удачное
расположение
Компания заказать строительство частного дома Краснодар на участке с коммуникациями
центральное
газоснабжение
Строительство частных коттеджей 150 метров в Краснодаре стоимость под ключ
Качественная
предчистовая отделка

Цена

Строительство одноэтажных коттеджей под ключ в Краснодаре с коммуникациями

Цена строительство премиум класс

от 25 000 / кв.м.

Дом теплая керамика и фасадный кирпич от 25 000 / кв.м.
Дом теплая кермика и штукатурка от 24 500 / кв.м.
Исполнение кирпич бутовый и штукатурка от 24 000 / кв.м.
Исполнение из газобетона от 23 500 / кв.м.
Исполнение из газобетона и штукатурки от 23 000 / кв.м.
Хочу такой дом
Видео строительства

Видео строительства

ПРОЕКТЫ

Другие проекты

Смотреть все

РАССЧИТАТЬ

ПОЗВОНИТЬ

Проектирование, визуализация и моделирование объектов Копирование материалов, право пользование Согласно ФЗ правил пользования материала KubTop.ru, настоящим сообщаем копирование запрещено У Вас другой вопрос? Вы ознакомлены, закрыть окно, или обратиться к нам за консультацией Ознакомлен Контакты